COMPACT LINE - LIGNE AUTOMATIQUE POUR LA COUPE DE CÉRAMIQUE, MARBRE ET PIERRE

NOUVEAUTÉ

La nouvelle ligne automatique, Compactline, a été projetée pour la coupe multidisque. Elle est idéale pour l’exécution d'échantillons et des mosaïques en grès cérame, marbre, granites et agglomérés.

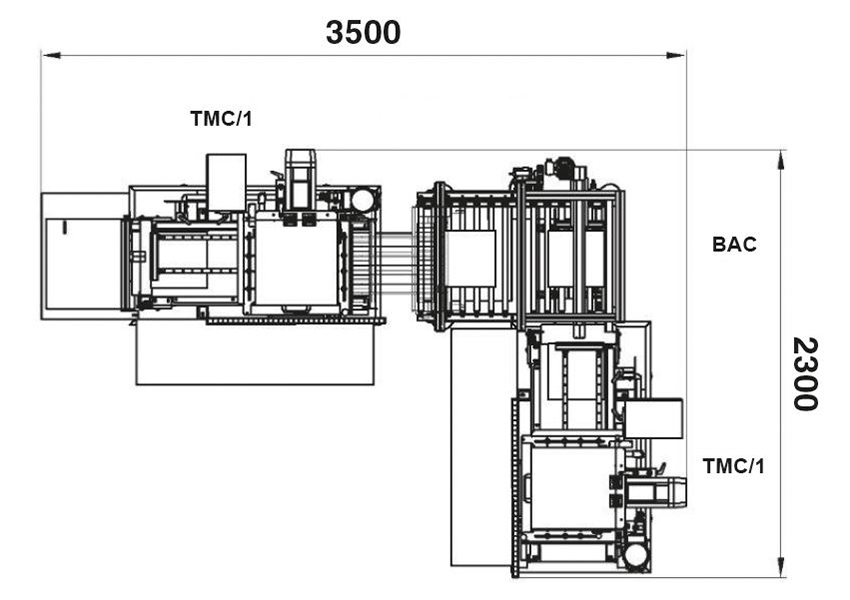
La ligne automatique se compose de :
TMC/1 Machine de coupe
BAC Rouleau motorisé automatique avec la chute pièces déchet
TMC/1 Machine de coupe

Annexés

FERRARI&CIGARINI COMPACTLINE Catalogue Général
FERRARI&CIGARINI COMPACTLINE References

Demander plus d’informations

Video